Capannone in vendita

Calcinate, Via Ninola
5 locali 5 locali
1000 Mq 1000 Mq
6 bagni 6 bagni

Capannone in vendita

Calcinate, Via Ninola

Descrizione annuncio

COSA SAPERE DELL'IMMOBILE

PER INFORMAZIONI ED APPUNTAMENTI CHIAMA 035.314.938

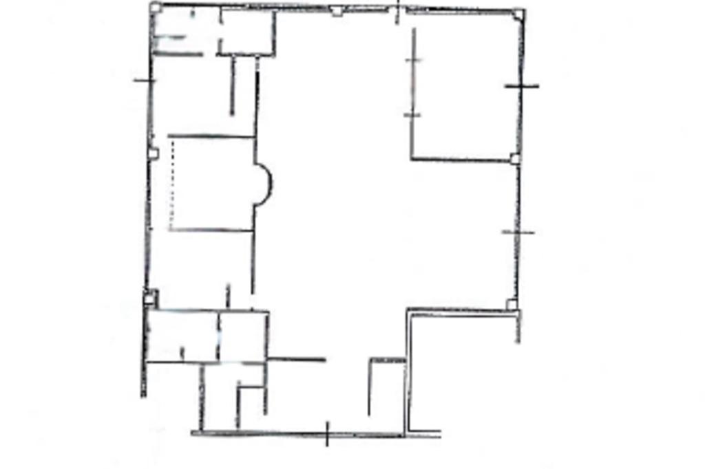
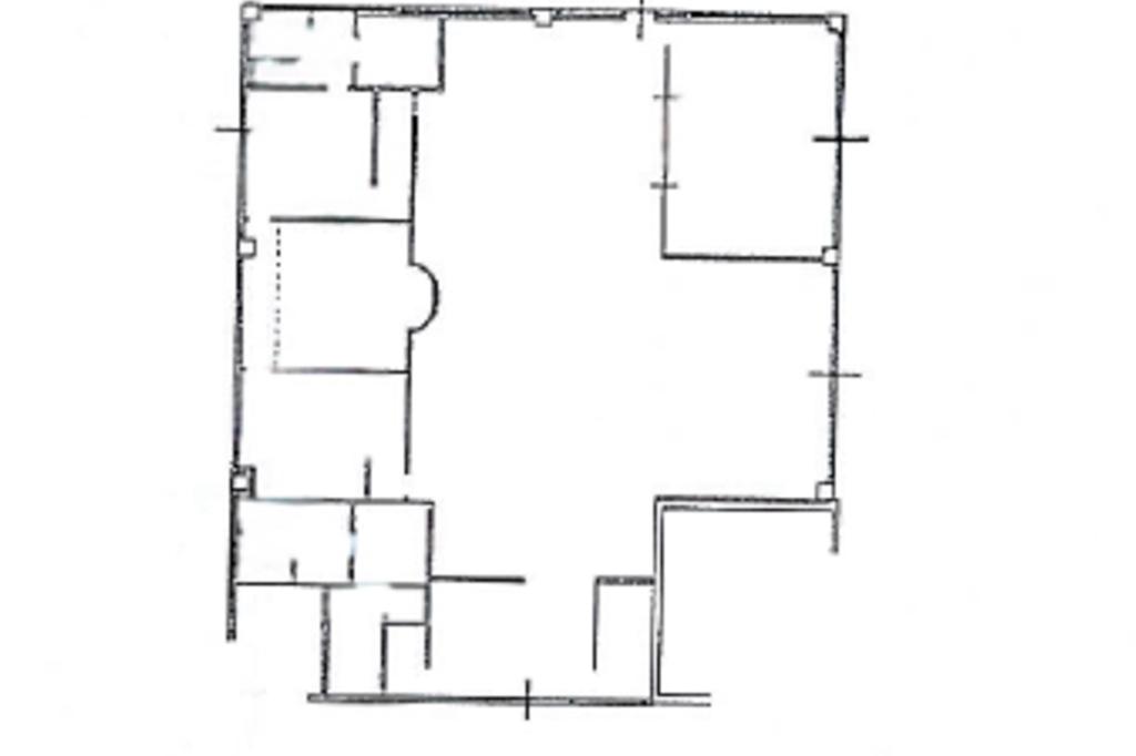
Il capannone proposto in vendita ha una superficie complessiva di circa 1.000 metri quadrati, di cui 500 metri quadrati di commerciale e 500 metri quadrati di magazzino.

DESCRIZIONE E PARTICOLARITA'

Il capannone misura 1.000 metri quadrati e si sviluppa su due livelli, al piano terra troviamo 500 metri quadrati di commerciale, mentre al piano interrato troviamo altrettanti 500 metri quadrati di magazzino, il quale è raggiungibile tramite un montacarichi. La soluzione ha un’altezza di 5,00 metri, con altezza sottotrave di 3,00 metri, ed è accessibile tramite due portoni, entrambi alti 5,00 metri. Il fabbricato è munito dell’impianto elettrico e quello di illuminazione. Inoltre, è presente il sistema di riscaldamento e raffrescamento, quello antincendio con le manichette e l’impianto di allarme. Il fabbricato possiede sei servizi igienici con spogliatoi e docce.

UBICAZIONE E CONTESTO

Il complesso è ubicato nella zona industriale del Comune di Calcinate, a pochi minuti di distanza dalla Strada Provinciale SP573, la quale collega velocemente il paese al Comune di Caravaggio. In aggiunta, dista circa sei chilometri dal casello autostradale A4 di Telgate. Esternamente sono presenti circa 150 posti auto.

Mostra tutto

Nelle vicinanze

Ricariche auto elettriche Ricariche auto elettriche
Bolgare Facchinetti | RESSOLAR
1,8 Km
Scuole Scuole
Scuola Primaria Papa Giovanni XXIII
330 m
Ospedali Ospedali
Ospedale di Calcinate "F.M. Passi"
750 m
Supermercati Supermercati
MD Market
210 m
Ristoranti Ristoranti
Bar Ristorante Pizzeria
1,9 Km
Pollicino
2,2 Km
Giropizza
2,4 Km
Mostra tutto

Caratteristiche

Rif.:
61112635
Piano:
1 di 3 (Piano su più livelli)
Posti auto:
99
Condizionamento:
Autonomo
Ascensore:
No
Riscaldamento:
Autonomo
Mostra tutto
Prezzo Prezzo
€ 460.000
Rata mutuo Rata mutuo
€ 2.180 / mese
Spese annue Spese annue
€ 3.000
Anche in affitto a
Proponi il tuo prezzoProponi il tuo prezzo

Classe Energetica

Questo immobile è esente da classe energetica
Anno di costruzione:
2008
Riscaldamento:
Autonomo
Tipo impianto:
Ad aria
Tipo alimentazione:
Aria

Ti interessa visionare l'immobile?

Fissa un appuntamento  Fissa un appuntamento

Richiedi informazioni

Clicca su Leggi per aprire l'informativa
* Questi campi sono obbligatori

Calcola il tuo mutuo

Semplice e senza impegno
Anticipo

( % )
Mutuo

( % )

pochi semplici passi

inserisci i tuoi dati
Questionario completato
Grazie per aver richiesto un appuntamento senza impegno con un nostro Consulente del Credito e Assicurativo.

Hai inserito correttamente tutti i dati necessari e a breve riceverai una e-mail con un link da convalidare per inviare i tuoi dati.
Affiliato
Industriale Bg1 Srl
Via Del Commercio, 110 24059 Urgnano (BG)

Il nostro staff


  • Agata Galimberti
    Coordinatrice

  • Lorenzo Rizzi
    Collaboratore

  • Cezar Schiopu
    Collaboratore

  • Dennis Faletti
    Affiliato
Via Del Commercio, 110 24059 Urgnano (BG)
Zona: Urgnano-Cologno al Serio-Romano di Lombardia-Martinengo-Ghisalba-Calcinate
Mostra su mappa
Orari: Dal Lunedì al Venerdì: 08:30 - 12:30 e 13:30 - 19:00, Sabato: 8:30 - 12:00
Affiliato
Industriale Bg1 Srl
Via Del Commercio, 110 24059 Urgnano (BG)

2026 Tecnocasa Franchising S.p.A. - P. IVA 08365160152 - Via Monte Bianco 60/A 20089 Rozzano (MI). Ogni agenzia ha un proprio titolare ed è autonoma. Privacy policy | Policy utilizzo | Cookie policy