Ufficio in affitto

Calcinate, Via Ninola
€ 2.000 / mese
2 locali 2 locali
385 Mq 385 Mq
2 bagni 2 bagni

Ufficio in affitto

Calcinate, Via Ninola

Descrizione annuncio

COSA SAPERE DELL'IMMOBILE PER INFORMAZIONI ED APPUNTAMENTI CHIAMA 035.314.938

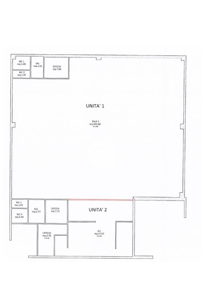
L'ufficio proposto in locazione ha una superficie complessiva di circa 385 metri quadrati.

DESCRIZIONE E PARTICOLARITA'

L'ufficio misura 385 metri quadrati ed è situato al piano terra. La soluzione ha un’altezza di 4,40 metri, con altezza sottotrave di 4,00 metri, ed è accessibile tramite due portoni, entrambi alti 5,00 metri. Il fabbricato è munito dell’impianto elettrico e quello di illuminazione. Inoltre, è presente il sistema di riscaldamento e raffrescamento. Il fabbricato possiede due servizi igienici a norma di disabili con annessi spogliatoi e docce. Presente una piccola parte esterna di circa 150 metri quadrati ad uso comune.

UBICAZIONE E CONTESTO

Il complesso è ubicato nella zona industriale del Comune di Calcinate, a pochi minuti di distanza dalla Strada Provinciale SP573, la quale collega velocemente il paese al Comune di Caravaggio. In aggiunta, dista circa sei chilometri dal casello autostradale A4 di Telgate. Esternamente sono presenti circa 150 posti auto.

Mostra tutto

Nelle vicinanze

Ricariche auto elettriche Ricariche auto elettriche
Bolgare Facchinetti | RESSOLAR
1,9 Km
Scuole Scuole
Scuola Primaria Papa Giovanni XXIII
340 m
Ospedali Ospedali
Ospedale di Calcinate "F.M. Passi"
810 m
Supermercati Supermercati
MD Market
400 m
Ristoranti Ristoranti
Bar Ristorante Pizzeria
1,7 Km
Pollicino
2,2 Km
Giropizza
2,4 Km
Mostra tutto

Caratteristiche

Rif.:
61185831
Piano:
1 di 2 (Piano terra)
Posti auto:
99
Condizionamento:
Autonomo
Ascensore:
No
Riscaldamento:
Autonomo
Mostra tutto
Prezzo Prezzo
€ 2.000 / mese
Spese annue Spese annue
€ 950

Classe Energetica

Questo immobile è esente da classe energetica
Anno di costruzione:
2008
Riscaldamento:
Autonomo
Tipo impianto:
A radiatori
Tipo alimentazione:
Metano

Ti interessa visionare l'immobile?

Fissa un appuntamento  Fissa un appuntamento

Richiedi informazioni

Clicca su Leggi per aprire l'informativa
* Questi campi sono obbligatori
Affiliato
Industriale Bg1 Srl
Via Del Commercio, 110 24059 Urgnano (BG)

Il nostro staff


  • Agata Galimberti
    Coordinatrice

  • Lorenzo Rizzi
    Collaboratore

  • Cezar Schiopu
    Collaboratore

  • Dennis Faletti
    Affiliato
Via Del Commercio, 110 24059 Urgnano (BG)
Zona: Urgnano-Cologno al Serio-Romano di Lombardia-Martinengo-Ghisalba-Calcinate
Mostra su mappa
Orari: Dal Lunedì al Venerdì: 08:30 - 12:30 e 13:30 - 19:00, Sabato: 8:30 - 12:00
Affiliato
Industriale Bg1 Srl
Via Del Commercio, 110 24059 Urgnano (BG)

2026 Tecnocasa Franchising S.p.A. - P. IVA 08365160152 - Via Monte Bianco 60/A 20089 Rozzano (MI). Ogni agenzia ha un proprio titolare ed è autonoma. Privacy policy | Policy utilizzo | Cookie policy