Capannone in vendita

Cavernago, Via Martiri di Nassiriya
€ 900.000
Prezzo aggiornato
2 locali 2 locali
800 Mq 800 Mq
2 bagni 2 bagni

Capannone in vendita

Cavernago, Via Martiri di Nassiriya

Descrizione annuncio

COSA SAPERE DELL'IMMOBILE

PER INFORMAZIONI ED APPUNTAMENTI CHIAMA 035.314.938

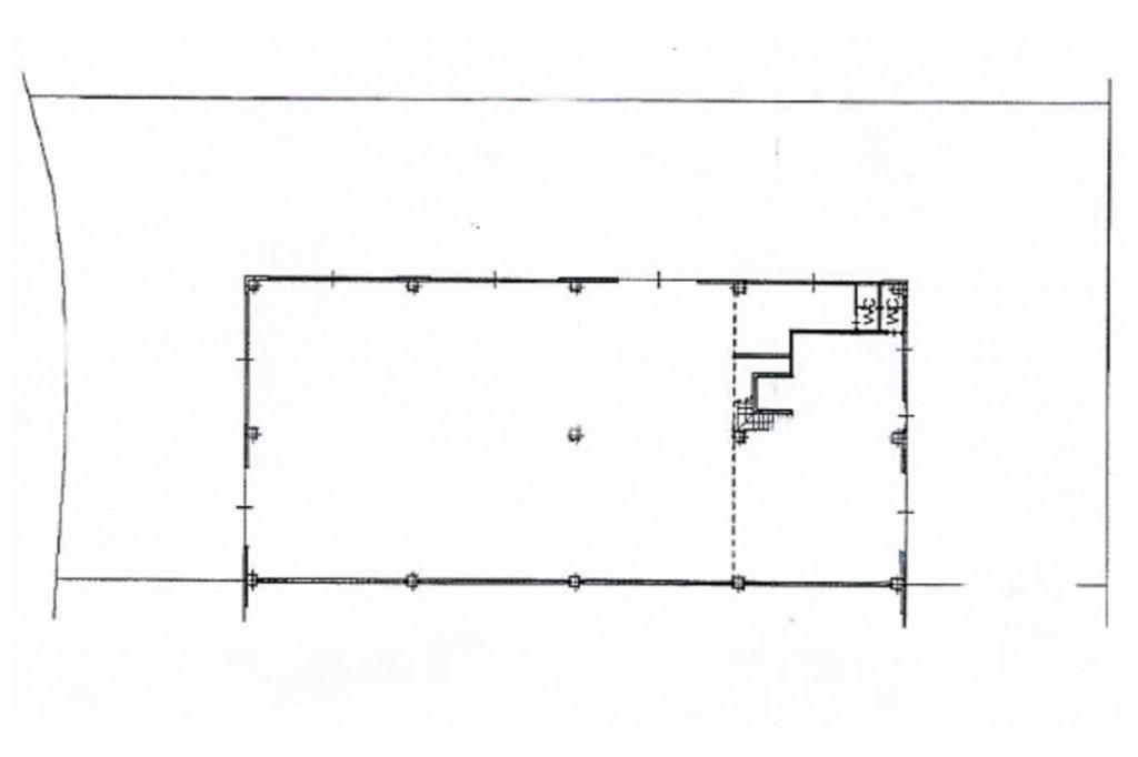
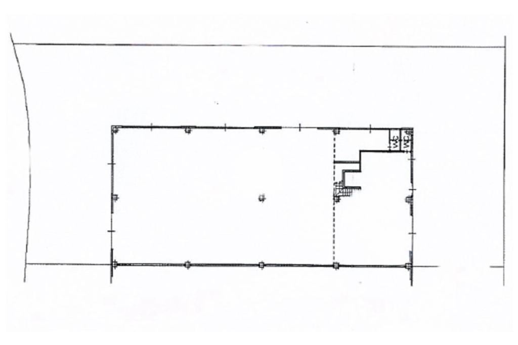
Il capannone proposto in vendita ha una superficie complessiva di circa 800 metri quadrati, di cui 200 metri quadrati adibiti ad uffici e con ulteriore area esterna di circa 1.400 metri quadrati ad uso esclusivo.

DESCRIZIONE E PARTICOLARITA'

Il capannone misura 800 metri quadrati, si sviluppa su un’unica campata, ha un’altezza pari a 8,15 metri ed è accessibile tramite sei portoni alti 5,00 metri. La struttura è dotata di 200 metri quadrati adibiti a ufficio e un’ulteriore area esterna ad uso esclusivo di ca 1.400 metri quadrati, che si sviluppa su tre lati. Nel capannone è presente l’impianto elettrico, di illuminazione, il sistema di antincendio a idranti e la porta tagliafuoco. La soluzione è munita anche di luci di emergenza, mensa e due servizi igienici con spogliatoi.

UBICAZIONE E CONTESTO

Il complesso è ubicato nel Comune di Cavernago, a pochi minuti di distanza dalla Strada Statale SS498, in aggiunta dista circa 3.5 km dal casello autostradale A4 di Seriate.

Mostra tutto

Nelle vicinanze

Scuole Scuole
Scuola primaria di Cavernago
1,0 Km
Scuola secondaria di Cavernago
1,0 Km
Ristoranti Ristoranti
Giropizza
2,0 Km
Pollicino
2,3 Km
Mostra tutto

Caratteristiche

Rif.:
61109718
Piano:
1 di 1 (Piano terra)
Condizionamento:
Assente
Ascensore:
No
Riscaldamento:
Assente
Libero:
Mostra tutto
Prezzo Prezzo
€ 900.000
Rata mutuo Rata mutuo
€ 4.265 / mese
Spese annue Spese annue
€ 0
Proponi il tuo prezzoProponi il tuo prezzo

Classe Energetica

Questo immobile è esente da classe energetica
Anno di costruzione:
2008
Riscaldamento:
Assente

Prezzo ridotto di €1 (10%%)

Ti interessa visionare l'immobile?

Fissa un appuntamento  Fissa un appuntamento

Richiedi informazioni

Clicca su Leggi per aprire l'informativa
* Questi campi sono obbligatori

Calcola il tuo mutuo

Semplice e senza impegno
Anticipo

( % )
Mutuo

( % )

pochi semplici passi

inserisci i tuoi dati
Questionario completato
Grazie per aver richiesto un appuntamento senza impegno con un nostro Consulente del Credito e Assicurativo.

Hai inserito correttamente tutti i dati necessari e a breve riceverai una e-mail con un link da convalidare per inviare i tuoi dati.
Affiliato
Industriale Bg1 Srl
Via Del Commercio, 110 24059 Urgnano (BG)

Il nostro staff


  • Agata Galimberti
    Coordinatrice

  • Lorenzo Rizzi
    Collaboratore

  • Cezar Schiopu
    Collaboratore

  • Dennis Faletti
    Affiliato
Via Del Commercio, 110 24059 Urgnano (BG)
Zona: Urgnano-Cologno al Serio-Romano di Lombardia-Martinengo-Ghisalba-Calcinate
Mostra su mappa
Orari: Dal Lunedì al Venerdì: 08:30 - 12:30 e 13:30 - 19:00, Sabato: 8:30 - 12:00
Affiliato
Industriale Bg1 Srl
Via Del Commercio, 110 24059 Urgnano (BG)

2026 Tecnocasa Franchising S.p.A. - P. IVA 08365160152 - Via Monte Bianco 60/A 20089 Rozzano (MI). Ogni agenzia ha un proprio titolare ed è autonoma. Privacy policy | Policy utilizzo | Cookie policy