Capannone in vendita

Cavernago, Via Romanino
Informazioni in agenzia
3 locali 3 locali
1300 Mq 1300 Mq
2 bagni 2 bagni

Capannone in vendita

Cavernago, Via Romanino

Questo immobile appartiene ad un'unità principale con metratura più ampia

Descrizione annuncio

COSA SAPERE DELL'IMMOBILE

PER INFORMAZIONI ED APPUNTAMENTI CHIAMA 035.314.938

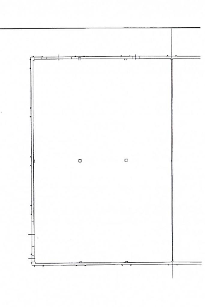
Il capannone proposto in vendita ha una superficie complessiva di circa 1.300 metri quadrati, di cui 70 metri quadrati di uffici. La struttura possiede ulteriori 3.000 metri quadri di area esterna esclusiva, di cui 550 ulteriormente edificabili.

DESCRIZIONE E PARTICOLARITA'

Il capannone misura 1.230 metri quadrati e possiede 70 metri quadrati di uffici. La soluzione ha un’altezza di 5,40 metri, si sviluppa lungo due diverse campate, ed è accessibile tramite due portoni, entrambi alti 5,00 metri. Il fabbricato è munito dell’impianto elettrico e quello di illuminazione. Inoltre, è presente il sistema antincendio a idranti. Gli uffici sono dotati dell’impianto di riscaldamento e condizionamento ad aria. Il fabbricato è munito di due servizi igienici con spogliatoi e docce. La proprietà è interamente recintata e possiede ulteriori 3.000 metri quadrati di area esterna esclusiva, di cui 550 metri quadri ulteriormente edificabili.

UBICAZIONE E CONTESTO

Il complesso è ubicato nella zona industriale del Comune di Cavernago, a pochi minuti di distanza dalla Strada Provinciale SP573, la quale collega il paese ai Comuni limitrofi. In aggiunta, dista circa sei e otto chilometri dai caselli autostradali A4 di Seriate e Grumello-Telgate.

Mostra tutto

Nelle vicinanze

Trasporto pubblico Trasporto pubblico
Ghisalba - Via Provinciale, 9
Ghisalba - Via Provinciale, 9
2,9 Km
Ghisalba - Via Provinciale, 30
Ghisalba - Via Provinciale, 30
3,0 Km
Ricariche auto elettriche Ricariche auto elettriche
Bolgare Facchinetti | RESSOLAR
2,9 Km
Scuole Scuole
Scuola primaria di Cavernago
1,2 Km
Scuola secondaria di Cavernago
1,2 Km
Scuola Primaria Papa Giovanni XXIII
1,9 Km
Scuola Elementare C. Cossali
2,9 Km
Ospedali Ospedali
Ospedale di Calcinate "F.M. Passi"
1,5 Km
Supermercati Supermercati
MD Market
2,2 Km
Ristoranti Ristoranti
Pollicino
110 m
Giropizza
230 m
Mostra tutto

Caratteristiche

Rif.:
61114068
Piano:
1 di 1 (Piano terra)
Posti auto:
99
Condizionamento:
Autonomo
Ascensore:
No
Riscaldamento:
Autonomo
Mostra tutto
Prezzo Prezzo
Informazioni in agenzia
Spese annue Spese annue
€ 0
Proponi il tuo prezzoProponi il tuo prezzo

Classe Energetica

Questo immobile è esente da classe energetica
Anno di costruzione:
2000
Riscaldamento:
Autonomo
Tipo impianto:
Ad aria
Tipo alimentazione:
Aria

Ti interessa visionare l'immobile?

Fissa un appuntamento  Fissa un appuntamento

Richiedi informazioni

Clicca su Leggi per aprire l'informativa
* Questi campi sono obbligatori
Affiliato
Industriale Bg1 Srl
Via Del Commercio, 110 24059 Urgnano (BG)

Il nostro staff


  • Agata Galimberti
    Coordinatrice

  • Lorenzo Rizzi
    Collaboratore

  • Cezar Schiopu
    Collaboratore

  • Dennis Faletti
    Affiliato
Via Del Commercio, 110 24059 Urgnano (BG)
Zona: Urgnano-Cologno al Serio-Romano di Lombardia-Martinengo-Ghisalba-Calcinate
Mostra su mappa
Orari: Dal Lunedì al Venerdì: 08:30 - 12:30 e 13:30 - 19:00, Sabato: 8:30 - 12:00
Affiliato
Industriale Bg1 Srl
Via Del Commercio, 110 24059 Urgnano (BG)

2026 Tecnocasa Franchising S.p.A. - P. IVA 08365160152 - Via Monte Bianco 60/A 20089 Rozzano (MI). Ogni agenzia ha un proprio titolare ed è autonoma. Privacy policy | Policy utilizzo | Cookie policy