Capannone in vendita

Cavernago, Via Romanino
Informazioni in agenzia
2 locali 2 locali
2600 Mq 2600 Mq
4 bagni 4 bagni

Capannone in vendita

Cavernago, Via Romanino

Descrizione annuncio

COSA SAPERE DELL'IMMOBILE
PER INFORMAZIONI ED APPUNTAMENTI CHIAMA IL 035.314.938
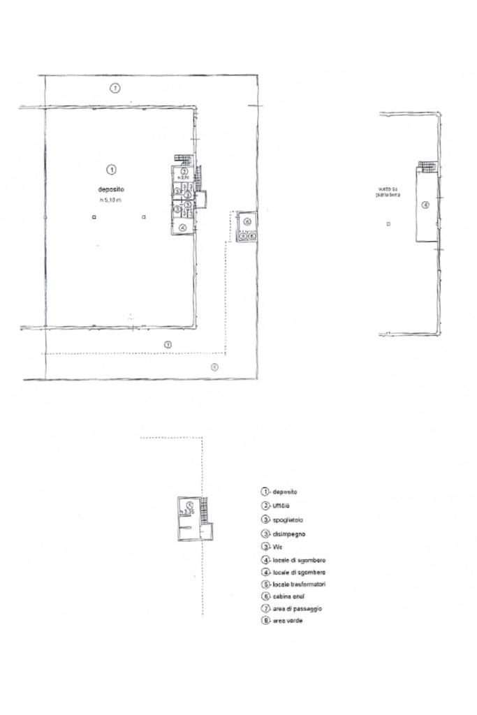
Il capannone proposto in vendita ha una superficie complessiva di circa 2.600 metri quadrati, suddivisa in due unità da circa 1.300 metri quadrati ciascuna. L'edificio dispone di circa 60 metri quadrati adibiti ad ufficio e posto al piano terra.

DESCRIZIONE E PARTICOLARITA'
Il capannone presenta dimensioni generose, con una lunghezza di 59,10 metri e una larghezza di 43,90 metri, caratteristiche che lo rendono estremamente versatile e adatto a diverse tipologie di attività industriali.

L’immobile presenta un'altezza di circa 7,8 metri con altezza sottotrave di circa 5 metri, garantendo un’ottima fruibilità degli spazi anche per lavorazioni e stoccaggi importanti.

L’immobile è inserito in un’area complessiva di circa 4.800 metri quadrati, completamente recintata e dotata di due accessi distinti, posizionati sul lato nord e sul lato est, che facilitano la gestione dei flussi logistici in entrata e uscita. Presenti inoltre circa 4 servizi igienici con spogliatoi.

Elemento di particolare valore è la presenza di una cabina Enel di proprietà all’interno della recinzione, con una potenza installata composta da due trasformatori da 630 kW ciascuno, rendendo la soluzione ideale anche per attività ad alto fabbisogno energetico.

All’esterno è presente un’ampia area parcheggio con oltre 600 posti auto, fondamentale per il supporto alle attività operative.

L’immobile risulta attualmente locato con due contratti di lunga durata:

primo contratto con decorrenza 1 Settembre 2017 e scadenza nel 2029secondo contratto con decorrenza 1 Gennaio 2019 e scadenza nel 2031

Entrambi garantiscono un’ottima rendita, pari al circa 5,13 % rendendo la proposta particolarmente interessante anche come investimento.

UBICAZIONE E CONTESTO
L’immobile è situato nel Comune di Cavernago, all’interno della zona produttiva denominata “Il Triangolo di Cavernago”.

La posizione è strategica grazie alla vicinanza alla rete viaria provinciale, che consente rapidi collegamenti con i principali poli logistici e produttivi della provincia di Bergamo.

Il capannone dista circa 5 km dal casello autostradale di Seriate (A4 MI-VE), circa 8 km dal casello di Grumello e circa 15 km dall’Aeroporto di Orio al Serio.

Mostra tutto

Nelle vicinanze

Trasporto pubblico Trasporto pubblico
Ghisalba - Via Provinciale, 9
Ghisalba - Via Provinciale, 9
2,9 Km
Ghisalba - Via Provinciale, 30
Ghisalba - Via Provinciale, 30
3,0 Km
Ricariche auto elettriche Ricariche auto elettriche
Bolgare Facchinetti | RESSOLAR
2,9 Km
Scuole Scuole
Scuola primaria di Cavernago
1,2 Km
Scuola secondaria di Cavernago
1,2 Km
Scuola Primaria Papa Giovanni XXIII
1,9 Km
Scuola Elementare C. Cossali
2,9 Km
Ospedali Ospedali
Ospedale di Calcinate "F.M. Passi"
1,6 Km
Supermercati Supermercati
MD Market
2,2 Km
Ristoranti Ristoranti
Pollicino
100 m
Giropizza
240 m
Mostra tutto

Caratteristiche

Rif.:
61202181
Piano:
1 di 1 (Piano terra)
Posti auto:
99
Condizionamento:
Autonomo
Ascensore:
No
Riscaldamento:
Autonomo
Mostra tutto
Prezzo Prezzo
Informazioni in agenzia
Spese annue Spese annue
€ 0
Proponi il tuo prezzoProponi il tuo prezzo

Classe Energetica

Questo immobile è esente da classe energetica
Anno di costruzione:
2001
Riscaldamento:
Autonomo
Tipo impianto:
A radiatori
Tipo alimentazione:
Metano

Ti interessa visionare l'immobile?

Fissa un appuntamento  Fissa un appuntamento

Richiedi informazioni

Clicca su Leggi per aprire l'informativa
* Questi campi sono obbligatori
Affiliato
Industriale Bg1 Srl
Via Del Commercio, 110 24059 Urgnano (BG)

Il nostro staff


  • Agata Galimberti
    Coordinatrice

  • Lorenzo Rizzi
    Collaboratore

  • Cezar Schiopu
    Collaboratore

  • Dennis Faletti
    Affiliato
Via Del Commercio, 110 24059 Urgnano (BG)
Zona: Urgnano-Cologno al Serio-Romano di Lombardia-Martinengo-Ghisalba-Calcinate
Mostra su mappa
Orari: Dal Lunedì al Venerdì: 08:30 - 12:30 e 13:30 - 19:00, Sabato: 8:30 - 12:00
Affiliato
Industriale Bg1 Srl
Via Del Commercio, 110 24059 Urgnano (BG)

2026 Tecnocasa Franchising S.p.A. - P. IVA 08365160152 - Via Monte Bianco 60/A 20089 Rozzano (MI). Ogni agenzia ha un proprio titolare ed è autonoma. Privacy policy | Policy utilizzo | Cookie policy