Capannone in vendita

Cortenuova, Via Trieste - Cortenova
€ 1.950.000
1 locale 1 locale
2600 Mq 2600 Mq
1 bagno 1 bagno

Capannone in vendita

Cortenuova, Via Trieste - Cortenova

Descrizione annuncio

COSA SAPERE DELL'IMMOBILE

PER INFORMAZIONI ED APPUNTAMENTI CHIAMA 035.314.938

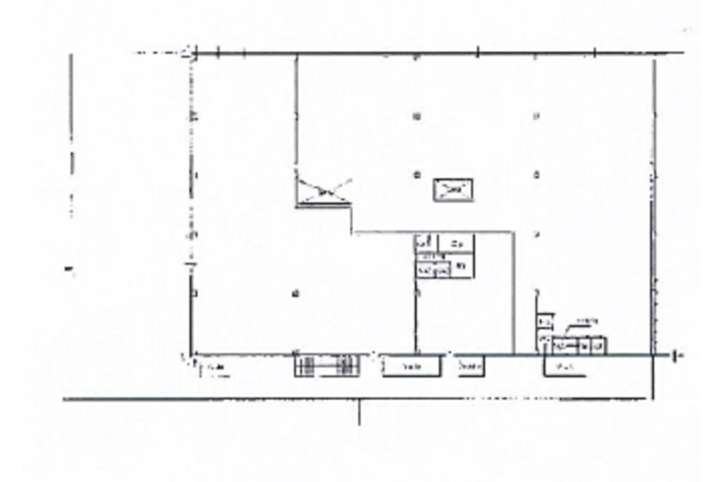
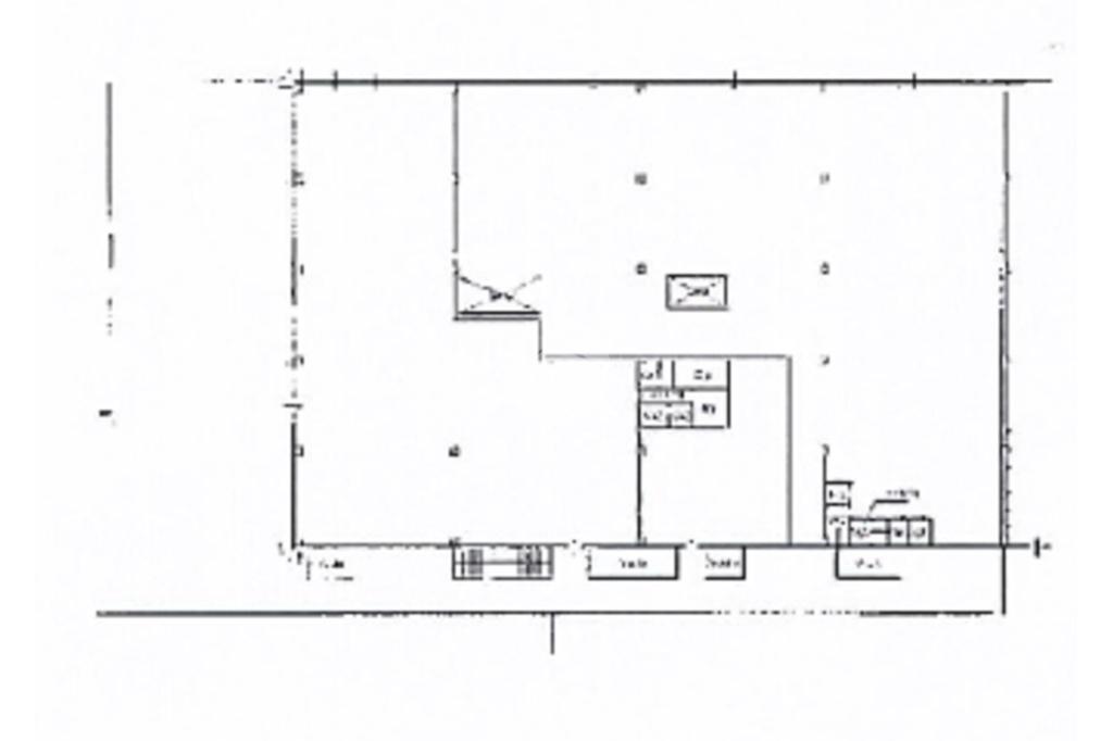
Il capannone commerciale proposto in vendita ha una superficie di circa 2.600 metri quadrati, posto al piano terra e con un'altezza pari a 8,50 metri.

DESCRIZIONE E PARTICOLARITA'

Il capannone commerciale misura 2.600 metri quadrati con ulteriori 1.150 metri quadrati di area esclusiva adibita a parcheggio e posti al piano interrato. La soluzione si sviluppa lungo sette campate, ha un’altezza di 8,50 metri, con altezza sottotrave di 8,00 metri. Il fabbricato è munito dell’impianto elettrico, di illuminazione, riscaldamento e condizionamento i quali dovranno poi essere soggetti a revisione. Presenti cinque servizi igienici. Nei pressi è presente anche un grande piazzale esterno ad uso comune pari a circa 3.950 metri quadrati.

UBICAZIONE E CONTESTO

Il complesso è ubicato nel Comune di Cortenuova, a pochi minuti di distanza dalla Strada Provinciale SP99, la quale collega il paese ai Comuni limitrofi.

Mostra tutto

Nelle vicinanze

Trasporto pubblico Trasporto pubblico
Calcio
Calcio
2,2 Km
Scuole Scuole
Scuola elementare
2,3 Km
Farmacia Farmacia
Farmacia
2,7 Km
Negozi Negozi
Negozi
2,3 Km
Bar Bar
Bar
2,3 Km
Bar Sport
2,4 Km
Bar "3 cigni"
2,6 Km
Ristoranti Ristoranti
Trattoria "Dal contadino"
2,3 Km
Mostra tutto

Caratteristiche

Rif.:
61200915
Piano:
1 di 1 (Piano terra)
Posti auto:
99
Condizionamento:
Predisposizione impianto
Ascensore:
No
Riscaldamento:
Autonomo
Mostra tutto
Prezzo Prezzo
€ 1.950.000
Rata mutuo Rata mutuo
€ 9.241 / mese
Spese annue Spese annue
€ 0
Proponi il tuo prezzoProponi il tuo prezzo

Classe Energetica

Questo immobile è esente da classe energetica
Anno di costruzione:
2007
Riscaldamento:
Autonomo
Tipo impianto:
A radiatori
Tipo alimentazione:
Metano

Ti interessa visionare l'immobile?

Fissa un appuntamento  Fissa un appuntamento

Richiedi informazioni

Clicca su Leggi per aprire l'informativa
* Questi campi sono obbligatori

Calcola il tuo mutuo

Semplice e senza impegno
Anticipo

( % )
Mutuo

( % )

pochi semplici passi

inserisci i tuoi dati
Questionario completato
Grazie per aver richiesto un appuntamento senza impegno con un nostro Consulente del Credito e Assicurativo.

Hai inserito correttamente tutti i dati necessari e a breve riceverai una e-mail con un link da convalidare per inviare i tuoi dati.
Affiliato
Industriale Bg1 Srl
Via Del Commercio, 110 24059 Urgnano (BG)

Il nostro staff


  • Agata Galimberti
    Coordinatrice

  • Lorenzo Rizzi
    Collaboratore

  • Cezar Schiopu
    Collaboratore

  • Dennis Faletti
    Affiliato
Via Del Commercio, 110 24059 Urgnano (BG)
Zona: Urgnano-Cologno al Serio-Romano di Lombardia-Martinengo-Ghisalba-Calcinate
Mostra su mappa
Orari: Dal Lunedì al Venerdì: 08:30 - 12:30 e 13:30 - 19:00, Sabato: 8:30 - 12:00
Affiliato
Industriale Bg1 Srl
Via Del Commercio, 110 24059 Urgnano (BG)

2026 Tecnocasa Franchising S.p.A. - P. IVA 08365160152 - Via Monte Bianco 60/A 20089 Rozzano (MI). Ogni agenzia ha un proprio titolare ed è autonoma. Privacy policy | Policy utilizzo | Cookie policy