Negozio in vendita

Cortenuova, Via Romano - Cortenova
€ 720.000
2 locali 2 locali
1220 Mq 1220 Mq
3 bagni 3 bagni

Negozio in vendita

Cortenuova, Via Romano - Cortenova

Questo immobile dispone di soluzioni frazionate

Descrizione annuncio

COSA SAPERE DELL'IMMOBILE

PER INFORMAZIONI ED APPUNTAMENTI CHIAMA 035.314.938

Proponiamo in vendita un negozio con superficie di circa 1.200 metri quadrati. L’immobile è già occupato e la vendita dello stesso verrà effettuata a reddito. Il canone annuale versato dal conduttore è pari a 48.000,00 € fino a Ottobre 2028, che successivamente aumenterà a 60.000,00 € con una rendita pari al 8,33%.

DESCRIZIONE E PARTICOLARITA'

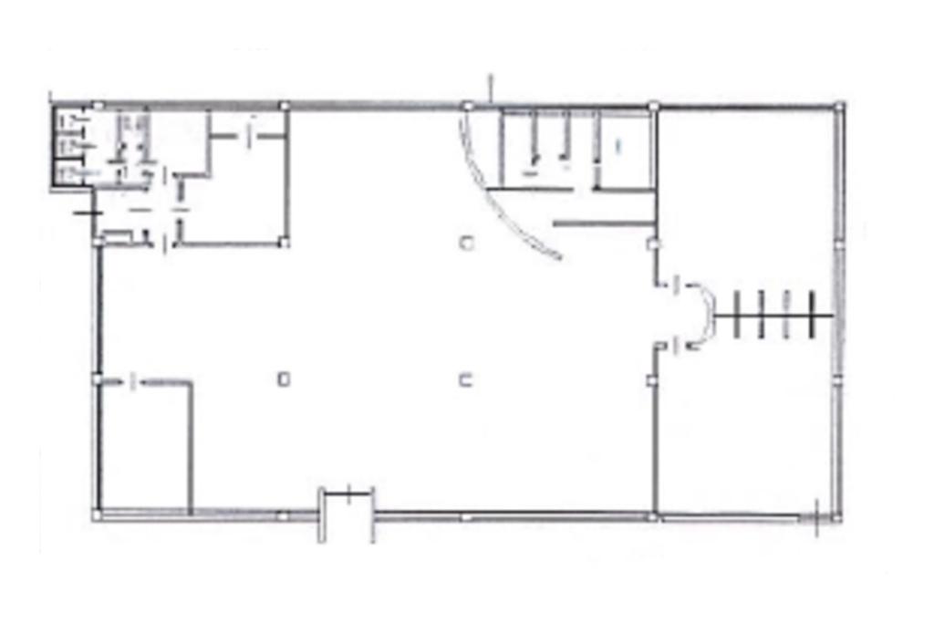
L’immobile possiede una superficie complessiva di circa 1.200 metri quadrati, così suddivisa: - Piano terra con una superficie di circa 500,00 metri quadrati - Primo piano con una superficie di circa 700,00 metri quadrati. L’ambiente risulta particolarmente luminoso grazie alla presenza di quattro ampie vetrine. La struttura è attualmente un open space ed è dotata di tre servizi igienici privati. Il negozio è servito da impianto di impianto elettrico e quello di illuminazione. La struttura è già locata a un rinomato locale notturno e la vendita della stessa verrà effettuata a reddito. Il canone annuale versato dal conduttore è pari a 48.000,00 € fino a Ottobre 2028, che successivamente aumenterà a 60.000,00 € con una rendita pari al 8,33%.

UBICAZIONE E CONTESTO

Il complesso si trova nel Comune di Cortenuova, a pochissimi minuti dalla Strada Statale SS498, la quale collega la Città ai paesi limitrofi. Di fronte si trovano molti parcheggi pubblici grazie alla presenza di un grande piazzale di circa 300 metri quadrati.

Mostra tutto

Nelle vicinanze

Scuole Scuole
Scuola elementare
1,3 Km
Farmacia Farmacia
Farmacia
1,4 Km
Negozi Negozi
Negozi
1,3 Km
Bar Bar
Bar
1,2 Km
Bar Sport
1,3 Km
Bar "3 cigni"
1,3 Km
Ristoranti Ristoranti
Trattoria "Dal contadino"
1,3 Km
Agriturismo Camporosso
2,5 Km
Asporto più
2,9 Km
Mostra tutto

Caratteristiche

Rif.:
61127839
Piano:
1 di 2 (Piano su più livelli)
Condizionamento:
Autonomo
Ascensore:
No
Riscaldamento:
Autonomo
Libero:
Mostra tutto
Prezzo Prezzo
€ 720.000
Rata mutuo Rata mutuo
€ 3.412 / mese
Spese annue Spese annue
€ 0
Proponi il tuo prezzoProponi il tuo prezzo

Classe Energetica

Questo immobile è esente da classe energetica
Anno di costruzione:
1980
Riscaldamento:
Autonomo
Tipo impianto:
A radiatori
Tipo alimentazione:
Metano

Ti interessa visionare l'immobile?

Fissa un appuntamento  Fissa un appuntamento

Richiedi informazioni

Clicca su Leggi per aprire l'informativa
* Questi campi sono obbligatori

Calcola il tuo mutuo

Semplice e senza impegno
Anticipo

( % )
Mutuo

( % )

pochi semplici passi

inserisci i tuoi dati
Questionario completato
Grazie per aver richiesto un appuntamento senza impegno con un nostro Consulente del Credito e Assicurativo.

Hai inserito correttamente tutti i dati necessari e a breve riceverai una e-mail con un link da convalidare per inviare i tuoi dati.
Affiliato
Industriale Bg1 Srl
Via Del Commercio, 110 24059 Urgnano (BG)

Il nostro staff


  • Agata Galimberti
    Coordinatrice

  • Lorenzo Rizzi
    Collaboratore

  • Cezar Schiopu
    Collaboratore

  • Dennis Faletti
    Affiliato
Via Del Commercio, 110 24059 Urgnano (BG)
Zona: Urgnano-Cologno al Serio-Romano di Lombardia-Martinengo-Ghisalba-Calcinate
Mostra su mappa
Orari: Dal Lunedì al Venerdì: 08:30 - 12:30 e 13:30 - 19:00, Sabato: 8:30 - 12:00
Affiliato
Industriale Bg1 Srl
Via Del Commercio, 110 24059 Urgnano (BG)

2026 Tecnocasa Franchising S.p.A. - P. IVA 08365160152 - Via Monte Bianco 60/A 20089 Rozzano (MI). Ogni agenzia ha un proprio titolare ed è autonoma. Privacy policy | Policy utilizzo | Cookie policy