Negozio in vendita

Fara Olivana Con Sola, Via EnzoFerrari
€ 1.100.000
Prezzo aggiornato
5 locali 5 locali
2130 Mq 2130 Mq
6 bagni 6 bagni

Negozio in vendita

Fara Olivana Con Sola, Via EnzoFerrari

Descrizione annuncio

COSA SAPERE DELL'IMMOBILE

PER INFORMAZIONI ED APPUNTAMENTI CHIAMA 035.314.938

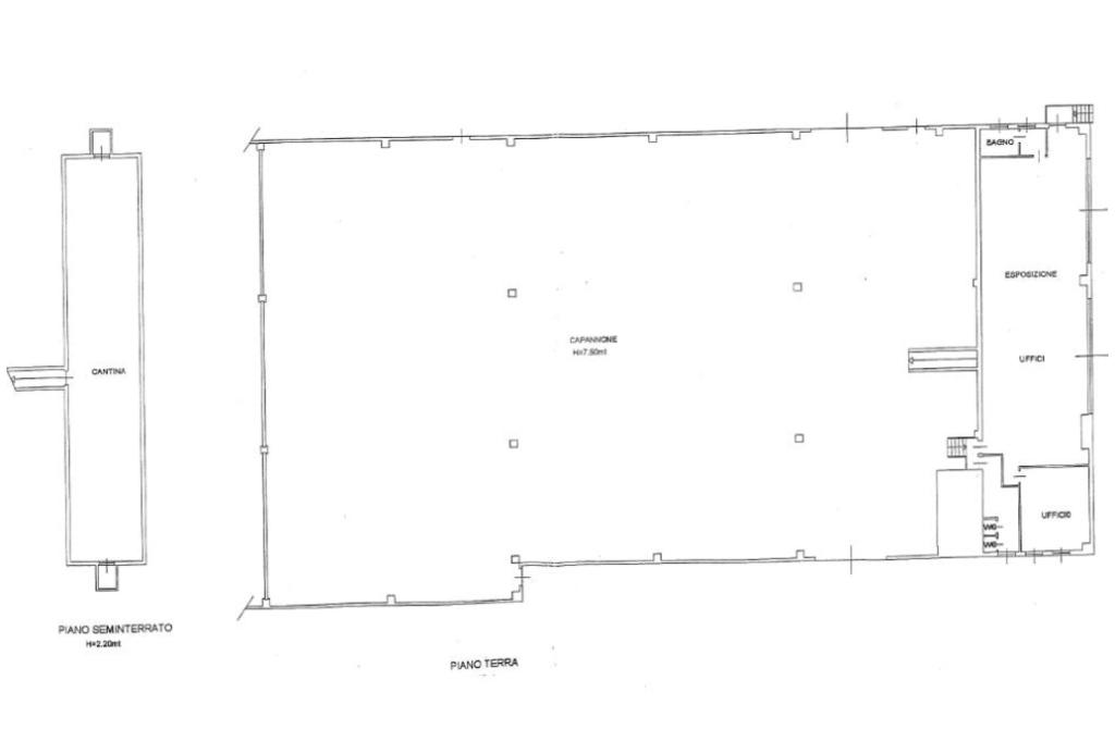
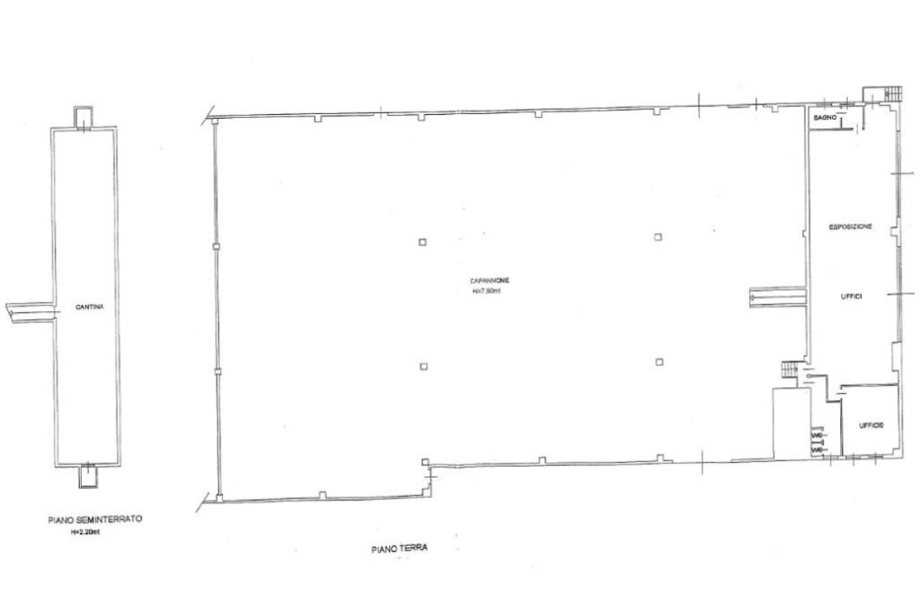
Il capannone commerciale proposto in vendita ha una superficie complessiva di circa 2.130 metri quadrati, di cui 450 metri quadrati di uffici e 160 metri quadrati di magazzino. La struttura possiede ulteriori 1.000 metri quadri di area esterna esclusiva.

DESCRIZIONE E PARTICOLARITA'

Il capannone commerciale misura 1.520 metri quadrati e possiede 650 metri quadrati di uffici i quali si sviluppano per metà al piano terra e per la restante metratura al piano primo. Al piano seminterrato sono presenti 160 metri quadrati di magazzino accessibile solo per via pedonale. La soluzione ha un’altezza di 7,50 metri, con altezza sottotrave di 6,00 metri, si sviluppa lungo un’unica campata, ed è accessibile tramite due portoni, entrambi alti 5,00 metri e larghi 4,00 metri. Il fabbricato è munito dell’impianto elettrico e quello di illuminazione. Inoltre, è presente il sistema antincendio a manichette e il sistema di allarme. Gli uffici sono dotati dell’impianto di riscaldamento e condizionamento. Il fabbricato possiede le mensole per l’installazione del carroponte ed è munito di sei servizi igienici con spogliatoi. La proprietà è interamente recintata, dispone di ulteriori 1.000 metri quadrati di area esterna esclusiva e di un impianto fotovoltaico da 77 kW, il quale rende circa 35.000,00 € annui. L'immobile è attualmente occupato e sarà liberato entro sei mesi dalla data di accettazione della proposta di vendita.

La soluzione è utilizzabile per l’attività di commercio all’ingrosso.

UBICAZIONE E CONTESTO

Il complesso è ubicato nella zona industriale del Comune di Fara Olivana con Sola, a pochi minuti di distanza dalla Strada Provinciale SP11, la quale collega velocemente il paese al Comune di Caravaggio. In aggiunta, dista circa tre e sette chilometri dai caselli autostradali A35 di Romano di Lombardia e Bariano.

Mostra tutto

Nelle vicinanze

Trasporto pubblico Trasporto pubblico
Trasporto pubblico
610 m
SAI
SAI
910 m
Ricariche auto elettriche Ricariche auto elettriche
Covo Barco | RESSOLAR
2,9 Km
Farmacia Farmacia
Farmacia S. Antonio
880 m
Dispensario farmaceutico
1,8 Km
Supermercati Supermercati
EuroSpin
410 m
Negozi Negozi
Le Matte
180 m
Bar Bar
Hologram
100 m
Pop's
910 m
Bar Monia
1,1 Km
Bar
2,0 Km
Café Roma
3,0 Km
Ristoranti Ristoranti
Da Simone
320 m
L'Angolo della pizza
940 m
Grill SS11
1,2 Km
Trattoria della Lepre
2,0 Km
Tre Pini
2,8 Km
Mostra tutto

Caratteristiche

Rif.:
61114777
Piano:
Su più livelli di 2
Totale piani:
2
Condizionamento:
Autonomo
Ascensore:
No
Riscaldamento:
Autonomo
Mostra tutto
Prezzo Prezzo
€ 1.100.000
Rata mutuo Rata mutuo
€ 5.137 / mese
Spese annue Spese annue
€ 0
Proponi il tuo prezzoProponi il tuo prezzo

Classe Energetica

Questo immobile è esente da classe energetica
Anno di costruzione:
2004
Riscaldamento:
Autonomo
Tipo impianto:
A radiatori
Tipo alimentazione:
Metano

Prezzo ridotto di €1 (9%%)

Ti interessa visionare l'immobile?

Fissa un appuntamento  Fissa un appuntamento

Richiedi informazioni

Clicca su Leggi per aprire l'informativa
* Questi campi sono obbligatori

Calcola il tuo mutuo

Semplice e senza impegno
Anticipo

( % )
Mutuo

( % )

pochi semplici passi

inserisci i tuoi dati
Questionario completato
Grazie per aver richiesto un appuntamento senza impegno con un nostro Consulente del Credito e Assicurativo.

Hai inserito correttamente tutti i dati necessari e a breve riceverai una e-mail con un link da convalidare per inviare i tuoi dati.
Affiliato
Industriale Bg1 Srl
Via Del Commercio, 110 24059 Urgnano (BG)

Il nostro staff


  • Agata Galimberti
    Coordinatrice

  • Lorenzo Rizzi
    Collaboratore

  • Cezar Schiopu
    Collaboratore

  • Dennis Faletti
    Affiliato
Via Del Commercio, 110 24059 Urgnano (BG)
Zona: Urgnano-Cologno al Serio-Romano di Lombardia-Martinengo-Ghisalba-Calcinate
Mostra su mappa
Orari: Dal Lunedì al Venerdì: 08:30 - 12:30 e 13:30 - 19:00, Sabato: 8:30 - 12:00
Affiliato
Industriale Bg1 Srl
Via Del Commercio, 110 24059 Urgnano (BG)

2026 Tecnocasa Franchising S.p.A. - P. IVA 08365160152 - Via Monte Bianco 60/A 20089 Rozzano (MI). Ogni agenzia ha un proprio titolare ed è autonoma. Privacy policy | Policy utilizzo | Cookie policy