Negozio in vendita

Fontanella, Cascina marzuole di sotto
€ 269.000
6 locali 6 locali
370 Mq 370 Mq
3 bagni 3 bagni

Negozio in vendita

Fontanella, Cascina marzuole di sotto

Descrizione annuncio

COSA SAPERE DELL'IMMOBILE

PER INFORMAZIONI ED APPUNTAMENTI CHIAMA 035.314.938

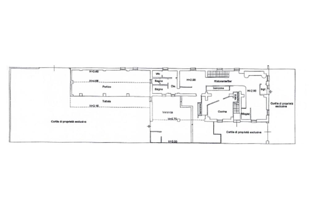
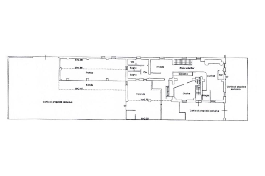
Proponiamo in vendita un negozio con superficie di ca 370 metri quadrati posto al piano terra di una struttura commerciale, il locale dispone di ulteriori 120 metri quadrati adibiti ad appartamento posto al piano primo e circa 120 metri quadrati di sottotetto usufruibile come magazzino.

DESCRIZIONE E PARTICOLARITA'

Il negozio misura ca 370 metri quadrati ed è situato al piano terra di una struttura commerciale. Presenti ulteriori 120 metri quadrati adibiti ad appartamento posto al piano primo con annesso ampio portico e circa 120 metri quadrati di sottotetto usufruibile come magazzino. La soluzione è attualmente dotata di tre servizi igienici a norma disabili, antibagno e due ulteriori stanze. L'ambiente è particolarmente luminoso grazie alla presenza di tre grandi vetrine, inoltre la struttura è munita di canna fumaria. L’immobile è dotato di ulteriori 1.800 mq di area esterna ad uso esclusivo.

UBICAZIONE E CONTESTO

Il complesso è ubicato nel Comune di Fontanella e affaccia sulla Strada Statale SS498, la quale collega il paese ai Comuni limitrofi.

Mostra tutto

Caratteristiche

Rif.:
61190597
Piano:
1 di 3 (Piano terra)
Posti auto:
99
Condizionamento:
Predisposizione impianto
Ascensore:
No
Riscaldamento:
Assente
Mostra tutto
Prezzo Prezzo
€ 269.000
Rata mutuo Rata mutuo
€ 1.275 / mese
Spese annue Spese annue
€ 0
Proponi il tuo prezzoProponi il tuo prezzo

Classe Energetica

Questo immobile è esente da classe energetica
Anno di costruzione:
1900
Riscaldamento:
Assente

Ti interessa visionare l'immobile?

Fissa un appuntamento  Fissa un appuntamento

Richiedi informazioni

Clicca su Leggi per aprire l'informativa
* Questi campi sono obbligatori

Calcola il tuo mutuo

Semplice e senza impegno
Anticipo

( % )
Mutuo

( % )

pochi semplici passi

inserisci i tuoi dati
Questionario completato
Grazie per aver richiesto un appuntamento senza impegno con un nostro Consulente del Credito e Assicurativo.

Hai inserito correttamente tutti i dati necessari e a breve riceverai una e-mail con un link da convalidare per inviare i tuoi dati.
Affiliato
Industriale Bg1 Srl
Via Del Commercio, 110 24059 Urgnano (BG)

Il nostro staff


  • Agata Galimberti
    Coordinatrice

  • Lorenzo Rizzi
    Collaboratore

  • Cezar Schiopu
    Collaboratore

  • Dennis Faletti
    Affiliato
Via Del Commercio, 110 24059 Urgnano (BG)
Zona: Urgnano-Cologno al Serio-Romano di Lombardia-Martinengo-Ghisalba-Calcinate
Mostra su mappa
Orari: Dal Lunedì al Venerdì: 08:30 - 12:30 e 13:30 - 19:00, Sabato: 8:30 - 12:00
Affiliato
Industriale Bg1 Srl
Via Del Commercio, 110 24059 Urgnano (BG)

2026 Tecnocasa Franchising S.p.A. - P. IVA 08365160152 - Via Monte Bianco 60/A 20089 Rozzano (MI). Ogni agenzia ha un proprio titolare ed è autonoma. Privacy policy | Policy utilizzo | Cookie policy