Negozio in vendita

Martinengo, Via I Maggio
€ 74.000
3 locali 3 locali
90 Mq 90 Mq
1 bagno 1 bagno

Negozio in vendita

Martinengo, Via I Maggio

Descrizione annuncio

COSA SAPERE DELL'IMMOBILE

PER INFORMAZIONI ED APPUNTAMENTI CHIAMA 035.314.938

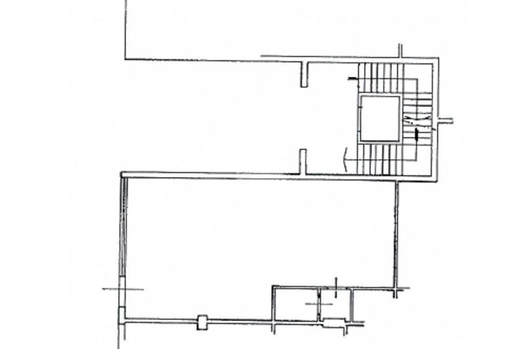
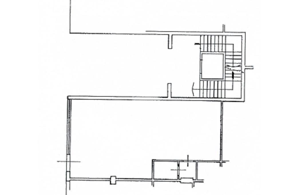
Proponiamo in vendita un negozio con superficie di 90 metri quadrati che si sviluppa al piano terra di una palazzina condominiale.

DESCRIZIONE E PARTICOLARITA'

Il negozio misura 90 metri quadrati e si sviluppa al piano terra di una struttura che si sviluppa su cinque livelli. La soluzione è attualmente divisa in più locali ed è dotata di un servizio igienico privato. L'ambiente è particolarmente luminoso grazie alla presenza di due grandi vetrine. La soluzione è dotata dell’impianto di riscaldamento, dell’impianto elettrico e quello di illuminazione. Inoltre, è presente il sistema antincendio con sprinkler.

UBICAZIONE E CONTESTO

Il complesso è ubicato nel Comune di Martinengo, a pochissimi minuti dalla Strada Statale SS498, la quale collega il paese ai Comuni limitrofi. In aggiunta, dista circa dieci chilometri dal casello autostradale A35 di Romano di Lombardia.

Mostra tutto

Nelle vicinanze

Trasporto pubblico Trasporto pubblico
Trasporto pubblico
220 m
Ghisalba - Via Provinciale, 41
Ghisalba - Via Provinciale, 41
2,6 Km
Scuole Scuole
Congregazione Della Sacra Famiglia Di Martinengo
670 m
S.M.S "Cagnola" Ghisalba
2,7 Km
Farmacia Farmacia
Farmacia
270 m
Supermercati Supermercati
Famila
710 m
Conad
2,4 Km
Ristoranti Ristoranti
Agriturismo Camporosso
2,1 Km
Mostra tutto

Caratteristiche

Rif.:
61116876
Piano:
1 di 5 (Piano terra)
Posti auto:
50
Condizionamento:
Autonomo
Ascensore:
No
Riscaldamento:
Autonomo
Mostra tutto
Prezzo Prezzo
€ 74.000
Rata mutuo Rata mutuo
€ 351 / mese
Spese annue Spese annue
€ 600
Proponi il tuo prezzoProponi il tuo prezzo

Classe Energetica

Questo immobile è esente da classe energetica
Anno di costruzione:
1994
Riscaldamento:
Autonomo
Tipo impianto:
Ad aria
Tipo alimentazione:
Aria

Ti interessa visionare l'immobile?

Fissa un appuntamento  Fissa un appuntamento

Richiedi informazioni

Clicca su Leggi per aprire l'informativa
* Questi campi sono obbligatori

Calcola il tuo mutuo

Semplice e senza impegno
Anticipo

( % )
Mutuo

( % )

pochi semplici passi

inserisci i tuoi dati
Questionario completato
Grazie per aver richiesto un appuntamento senza impegno con un nostro Consulente del Credito e Assicurativo.

Hai inserito correttamente tutti i dati necessari e a breve riceverai una e-mail con un link da convalidare per inviare i tuoi dati.
Affiliato
Industriale Bg1 Srl
Via Del Commercio, 110 24059 Urgnano (BG)

Il nostro staff


  • Agata Galimberti
    Coordinatrice

  • Lorenzo Rizzi
    Collaboratore

  • Cezar Schiopu
    Collaboratore

  • Dennis Faletti
    Affiliato
Via Del Commercio, 110 24059 Urgnano (BG)
Zona: Urgnano-Cologno al Serio-Romano di Lombardia-Martinengo-Ghisalba-Calcinate
Mostra su mappa
Orari: Dal Lunedì al Venerdì: 08:30 - 12:30 e 13:30 - 19:00, Sabato: 8:30 - 12:00
Affiliato
Industriale Bg1 Srl
Via Del Commercio, 110 24059 Urgnano (BG)

2026 Tecnocasa Franchising S.p.A. - P. IVA 08365160152 - Via Monte Bianco 60/A 20089 Rozzano (MI). Ogni agenzia ha un proprio titolare ed è autonoma. Privacy policy | Policy utilizzo | Cookie policy