Capannone in vendita

Mornico Al Serio, Via Baraccone
€ 435.000
3 locali 3 locali
700 Mq 700 Mq
2 bagni 2 bagni

Capannone in vendita

Mornico Al Serio, Via Baraccone

Questo immobile appartiene ad un'unità principale con metratura più ampia

Descrizione annuncio

COSA SAPERE DELL'IMMOBILE


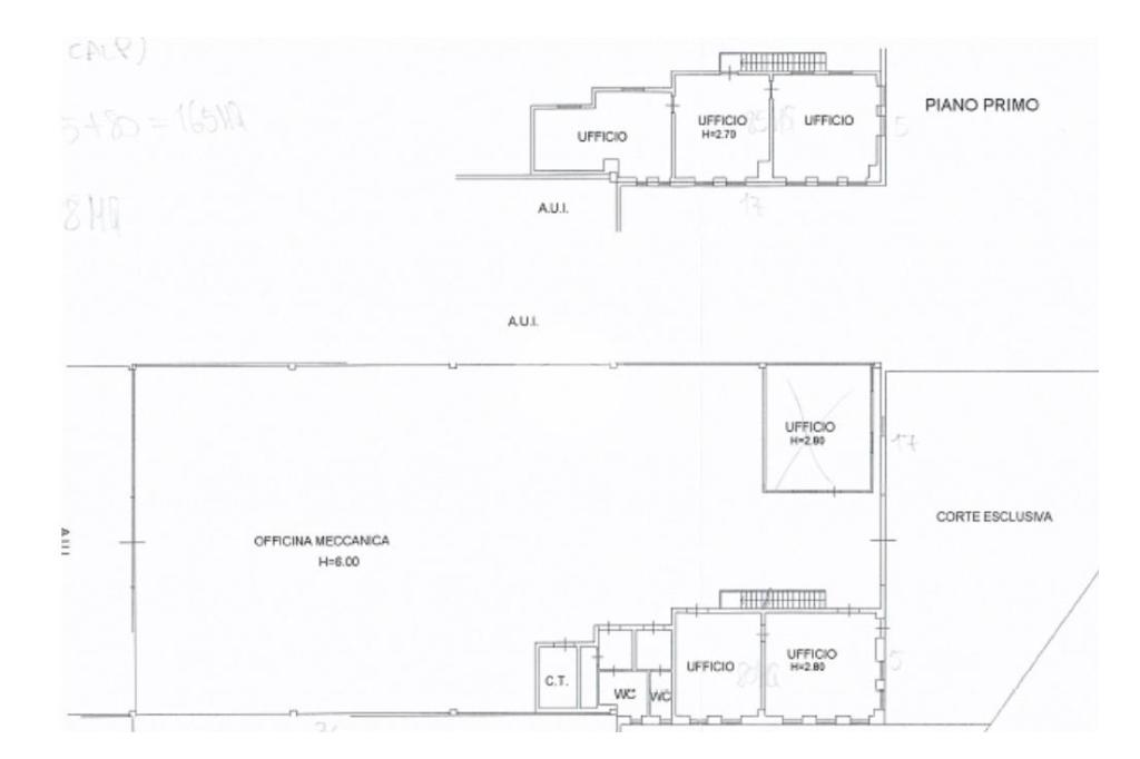
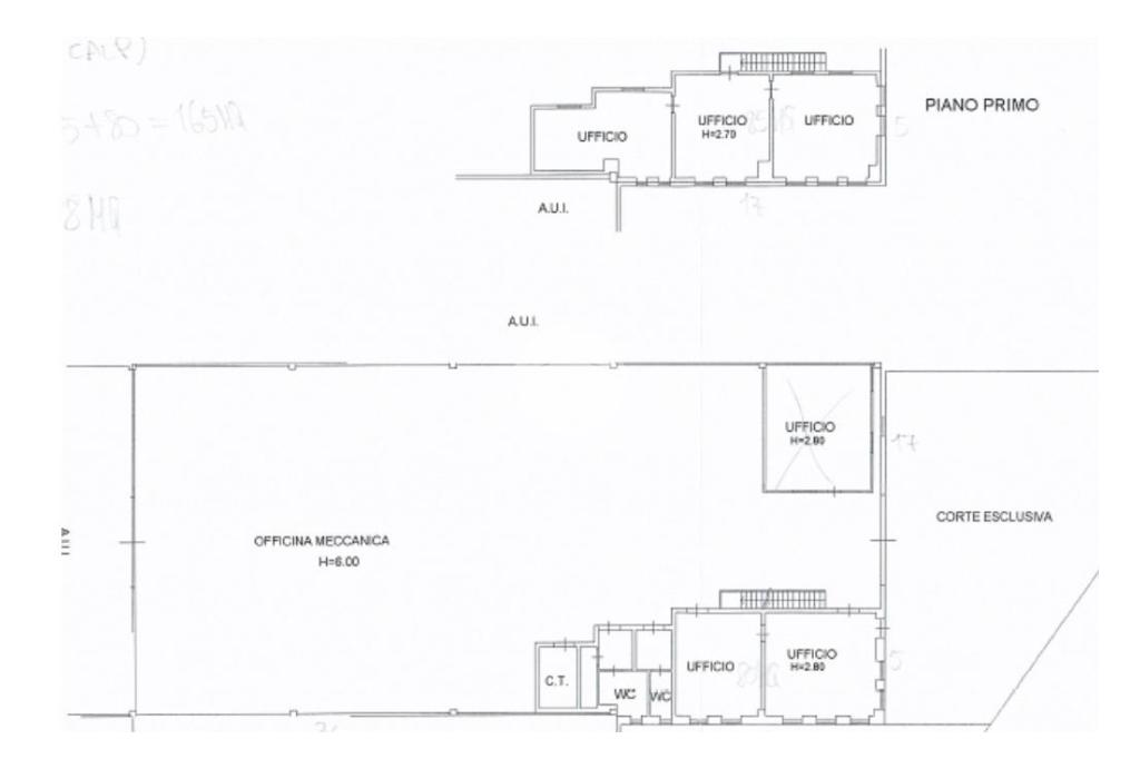
Proponiamo in vendita un capannone di circa 700 metri quadrati posizionato al piano terra di un complesso industriale e ulteriori 200 metri quadrati di area esterna.


DESCRIZIONE E PARTICOLARITA'

Il capannone proposto in vendita ha una superficie complessiva di circa 700 metri quadrati. La soluzione, la cui altezza massima sfruttabile è di 6 metri, è accessibile tramite un portone di altezza 5 metri che si apre su un ambiente suddiviso in un ampio open space e due locali adibiti ad uffici. Inoltre, dispone di due servizi igienici privati.
L'immobile è provvisto degli impianti di riscaldamento, di condizionamento, elettrico e di illuminazione. Il tetto della struttura è stato completamente rifatto nel corso dell’anno 2023.

UBICAZIONE E CONTESTO

La struttura è situata nel Comune di Mornico al Serio, nella zona commerciale e beneficia di numerosi posti auto e un ampio piazzale.
La soluzione rimane in una posizione vantaggiosa essendo vicina al casello dell’autostrada A4 di Grumello – Telgate.

Mostra tutto

Nelle vicinanze

Scuole Scuole
Scuola Primaria Papa Giovanni XXIII
2,3 Km
Ospedali Ospedali
Ospedale di Calcinate "F.M. Passi"
2,7 Km
Supermercati Supermercati
MD Market
2,4 Km
Bar Bar
Barabba
2,4 Km
Ristoranti Ristoranti
Bar Ristorante Pizzeria
430 m
Mostra tutto

Caratteristiche

Rif.:
61116757
Piano:
1 di 2 (Piano terra)
Posti auto:
30
Condizionamento:
Autonomo
Ascensore:
No
Riscaldamento:
Autonomo
Mostra tutto
Prezzo Prezzo
€ 435.000
Rata mutuo Rata mutuo
€ 2.050 / mese
Spese annue Spese annue
€ 0
Proponi il tuo prezzoProponi il tuo prezzo

Classe Energetica

Questo immobile è esente da classe energetica
Anno di costruzione:
1980
Riscaldamento:
Autonomo
Tipo impianto:
Ad aria
Tipo alimentazione:
Aria

Ti interessa visionare l'immobile?

Fissa un appuntamento  Fissa un appuntamento

Richiedi informazioni

Clicca su Leggi per aprire l'informativa
* Questi campi sono obbligatori

Calcola il tuo mutuo

Semplice e senza impegno
Anticipo

( % )
Mutuo

( % )

pochi semplici passi

inserisci i tuoi dati
Questionario completato
Grazie per aver richiesto un appuntamento senza impegno con un nostro Consulente del Credito e Assicurativo.

Hai inserito correttamente tutti i dati necessari e a breve riceverai una e-mail con un link da convalidare per inviare i tuoi dati.
Affiliato
Industriale Bg1 Srl
Via Del Commercio, 110 24059 Urgnano (BG)

Il nostro staff


  • Agata Galimberti
    Coordinatrice

  • Cezar Schiopu
    Collaboratore

  • Dennis Faletti
    Affiliato
Via Del Commercio, 110 24059 Urgnano (BG)
Zona: Urgnano-Cologno al Serio-Romano di Lombardia-Martinengo-Ghisalba-Calcinate
Mostra su mappa
Orari: Dal Lunedì al Venerdì: 08:30 - 12:30 e 13:30 - 19:00, Sabato: 8:30 - 12:00
Affiliato
Industriale Bg1 Srl
Via Del Commercio, 110 24059 Urgnano (BG)

2026 Tecnocasa Franchising S.p.A. - P. IVA 08365160152 - Via Monte Bianco 60/A 20089 Rozzano (MI). Ogni agenzia ha un proprio titolare ed è autonoma. Privacy policy | Policy utilizzo | Cookie policy