Ufficio in affitto

Torre Pallavicina, Via Torre
€ 750 / mese
1 locale 1 locale
230 Mq 230 Mq
1 bagno 1 bagno

Ufficio in affitto

Torre Pallavicina, Via Torre

Descrizione annuncio

COSA SAPERE DELL'IMMOBILE

PER INFORMAZIONI ED APPUNTAMENTI CHIAMA 035.314.938

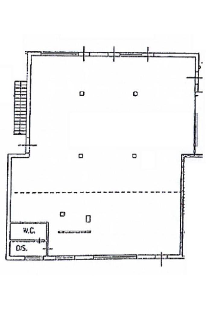
Proponiamo in locazione un ufficio con superficie di 230 metri quadrati, situato al piano terra di una struttura condominiale.

DESCRIZIONE E PARTICOLARITA'

L’ufficio misura 230 metri quadrati ed è situato al piano terra di una palazzina che si sviluppa su tre livelli. La soluzione è un open space ed è dotata di un servizio igienico privato a norma disabili. L'ambiente è particolarmente luminoso grazie alla presenza di due grandi vetrine. Il locale possiede l'impianto di riscaldamento e quello di condizionamento, l'impianto elettrico e quello di illuminazione. Il fabbricato è stato ristrutturato nel corso dello scorso anno.

UBICAZIONE E CONTESTO

Il complesso è ubicato nel Comune di Torre Pallavicina e si affaccia sulla Strada Provinciale SP106, la quale collega il Paese ai Comuni limitrofi. Inoltre, possiede 4 posti auto di proprietà e presenta una ventina di parcheggi pubblici.

Mostra tutto

Nelle vicinanze

Bar Bar
Bar
1,6 Km
Mostra tutto

Caratteristiche

Rif.:
61115853
Piano:
1 di 3 (Piano terra)
Posti auto:
4
Condizionamento:
Autonomo
Ascensore:
No
Riscaldamento:
Autonomo
Mostra tutto
Prezzo Prezzo
€ 750 / mese
Spese annue Spese annue
€ 0

Altre caratteristiche

Descrizione dei locali
Bagno Cieco

Classe Energetica

Questo immobile è esente da classe energetica
Anno di costruzione:
1980
Riscaldamento:
Autonomo
Tipo impianto:
A radiatori
Tipo alimentazione:
Metano

Ti interessa visionare l'immobile?

Fissa un appuntamento  Fissa un appuntamento

Richiedi informazioni

Clicca su Leggi per aprire l'informativa
* Questi campi sono obbligatori
Affiliato
Industriale Bg1 Srl
Via Del Commercio, 110 24059 Urgnano (BG)

Il nostro staff


  • Agata Galimberti
    Coordinatrice

  • Lorenzo Rizzi
    Collaboratore

  • Cezar Schiopu
    Collaboratore

  • Dennis Faletti
    Affiliato
Via Del Commercio, 110 24059 Urgnano (BG)
Zona: Urgnano-Cologno al Serio-Romano di Lombardia-Martinengo-Ghisalba-Calcinate
Mostra su mappa
Orari: Dal Lunedì al Venerdì: 08:30 - 12:30 e 13:30 - 19:00, Sabato: 8:30 - 12:00
Affiliato
Industriale Bg1 Srl
Via Del Commercio, 110 24059 Urgnano (BG)

2026 Tecnocasa Franchising S.p.A. - P. IVA 08365160152 - Via Monte Bianco 60/A 20089 Rozzano (MI). Ogni agenzia ha un proprio titolare ed è autonoma. Privacy policy | Policy utilizzo | Cookie policy