Capannone in vendita

Urgnano, Via Provinciale
Informazioni in agenzia
1 locale 1 locale
5000 Mq 5000 Mq

Capannone in vendita

Urgnano, Via Provinciale

Descrizione annuncio

COSA SAPERE DELL'IMMOBILE

PER INFORMAZIONI ED APPUNTAMENTI CHIAMA 035.314.938

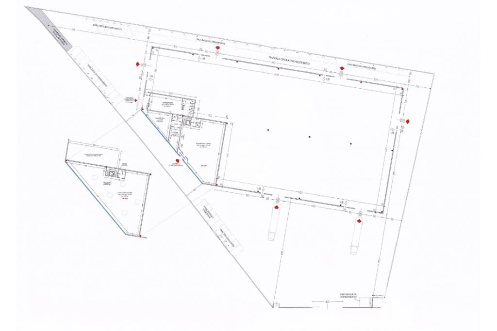
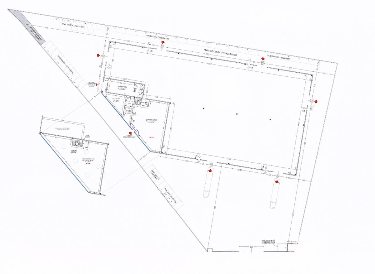
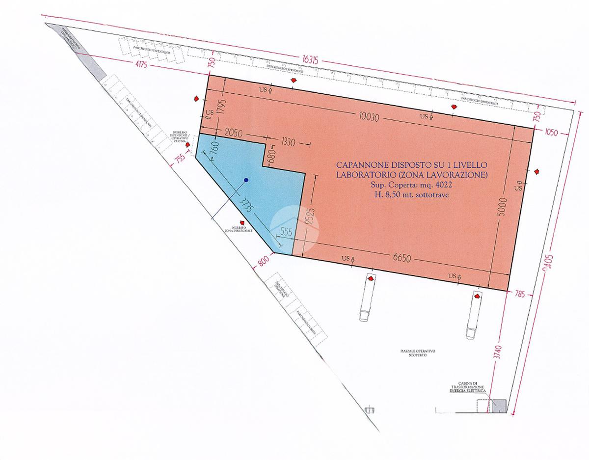
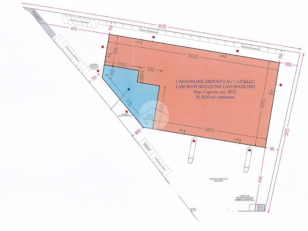
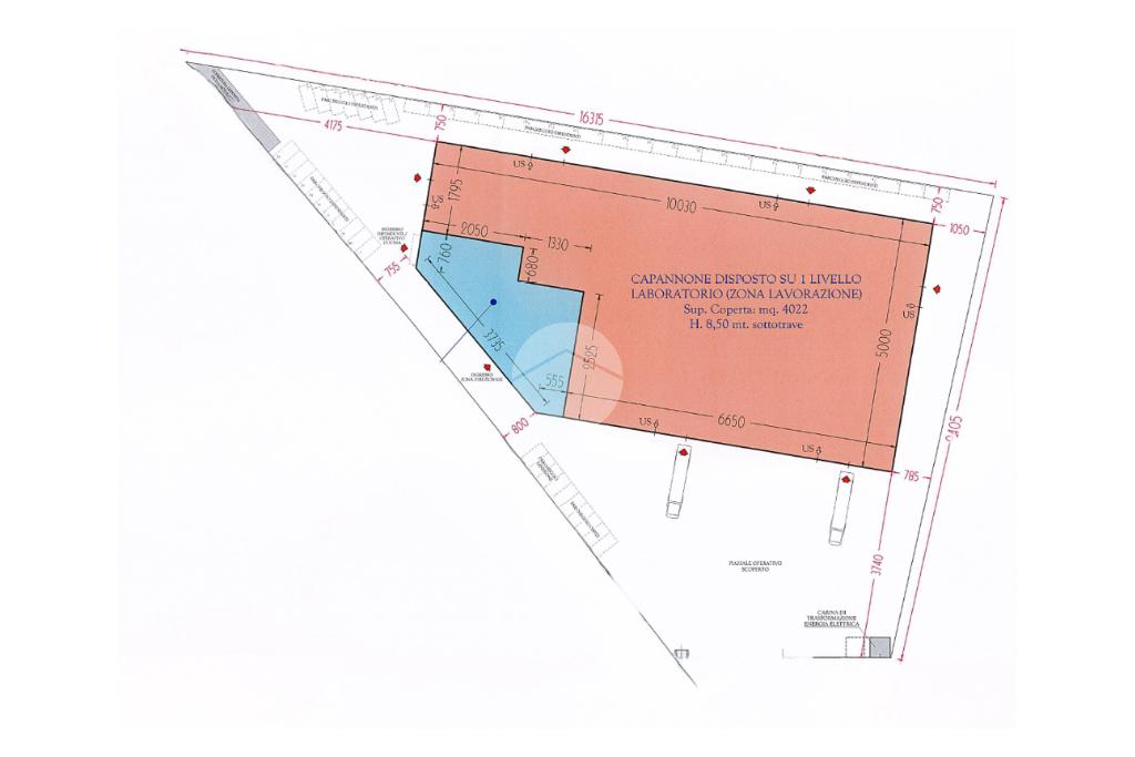
Il capannone proposto in vendita ha una superficie di circa 5.000 metri quadrati e possiede ulteriori 5.000 metri quadri di area esterna esclusiva.

DESCRIZIONE E PARTICOLARITA'

Il capannone misura circa 5.000 metri quadrati ed è situato al piano terra. La soluzione si sviluppa lungo due campate, ha un’altezza di 8,50 metri, con altezza sottotrave di 8,50 metri. Il complesso è nuovo ed è personalizzabile e sviluppato secondo le richieste dell'acquirente. La proprietà è interamente recintata e possiede ulteriori 5.000 metri quadrati di area esterna esclusiva.

Le fotografie del presente annuncio sono state create con l’aiuto dell’intelligenza artificiale.

UBICAZIONE E CONTESTO

Il complesso è ubicato nella zona industriale del Comune di Urgnano, a pochi minuti di distanza dalla Strada Provinciale SP11, la quale collega il paese ai Comuni limitrofi. In aggiunta, dista circa quattro chilometri dal casello autostradale A35 di Romano di Lombardia.

Mostra tutto

Nelle vicinanze

Trasporto pubblico Trasporto pubblico
Porta Rocca
Porta Rocca
2,0 Km
Scuole elementari
Scuole elementari
2,3 Km
Ricariche auto elettriche Ricariche auto elettriche
Cologno al Serio - BeCharge
2,4 Km
Farmacia Farmacia
Farmacia de Quarti
2,9 Km
Negozi Negozi
Boutique Moretti
2,3 Km
Bar Bar
Caffè Colleoni
1,2 Km
Bar
2,0 Km
Da Adriano
2,9 Km
Tre Archi
2,9 Km
Da Batosta
3,0 Km
Ristoranti Ristoranti
Pizzeria Me Gusta
260 m
Ristorante Pizzeria Alla Miniera
510 m
Agriturismo Sant'Antonio
1,6 Km
Antico mulino
1,7 Km
Ristorante Pizzeria Corona
2,0 Km
Mostra tutto

Caratteristiche

Rif.:
61147684
Piano:
1 di 2 (Piano terra)
Condizionamento:
Assente
Ascensore:
No
Riscaldamento:
Assente
Libero:
Mostra tutto
Prezzo Prezzo
Informazioni in agenzia
Spese annue Spese annue
€ 0
Proponi il tuo prezzoProponi il tuo prezzo

Classe Energetica

Questo immobile è esente da classe energetica
Anno di costruzione:
2026
Riscaldamento:
Assente

Ti interessa visionare l'immobile?

Fissa un appuntamento  Fissa un appuntamento

Richiedi informazioni

Clicca su Leggi per aprire l'informativa
* Questi campi sono obbligatori
Affiliato
Industriale Bg1 Srl
Via Del Commercio, 110 24059 Urgnano (BG)

Il nostro staff


  • Agata Galimberti
    Coordinatrice

  • Lorenzo Rizzi
    Collaboratore

  • Cezar Schiopu
    Collaboratore

  • Dennis Faletti
    Affiliato
Via Del Commercio, 110 24059 Urgnano (BG)
Zona: Urgnano-Cologno al Serio-Romano di Lombardia-Martinengo-Ghisalba-Calcinate
Mostra su mappa
Orari: Dal Lunedì al Venerdì: 08:30 - 12:30 e 13:30 - 19:00, Sabato: 8:30 - 12:00
Affiliato
Industriale Bg1 Srl
Via Del Commercio, 110 24059 Urgnano (BG)

2026 Tecnocasa Franchising S.p.A. - P. IVA 08365160152 - Via Monte Bianco 60/A 20089 Rozzano (MI). Ogni agenzia ha un proprio titolare ed è autonoma. Privacy policy | Policy utilizzo | Cookie policy